Este site utiliza cookies para permitir a mudança de língua e o armazenamento dos seus imóveis favoritos. Ao utilizar este site, concorda que o mesmo utilize cookies.

Moradia no centro de Paredes de Coura, com 700m2 de terreno (possibilidade de comercio/serviços).

220.000€




Referência

CD0019

Natureza

Venda

Tipo de Imóvel

Moradia

Subtipo de Imóvel

Moradia Geminada

Tipologia

T3

Estado

Usado

Certificado energético

E


Distrito

Viana do Castelo

Concelho

Paredes de Coura

Freguesia

Paredes de Coura e Resende

Código Postal

4940


Área Útil

198 m2

Área Bruta

248 m2

Área de Terreno

753 m2





Contactar Imobiliária

*Preenchimento obrigatório
Ao clicar em 'Enviar', declara que aceita a nossa Política de Privacidade.
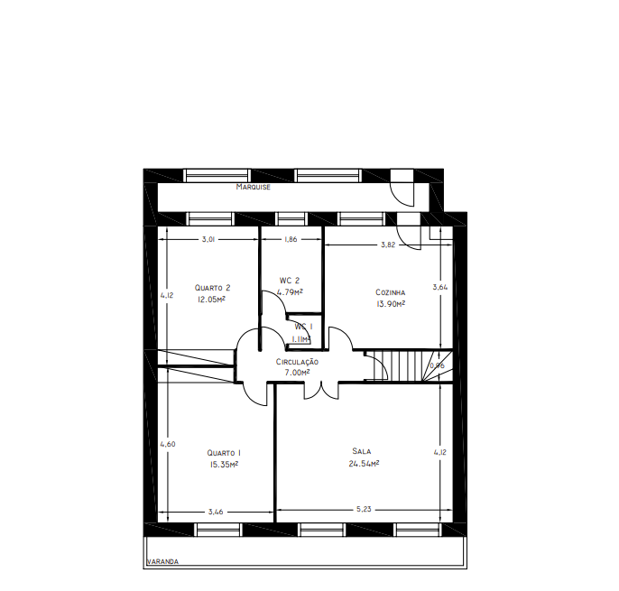
Moradia em banda (apesar de que com paredes individuais), de dois andares, garagem, anexos e agua de furo, num total de 750m2 de terreno.
Acesso independente para cada andar, podendo assim fazer distintas utilizações dos pisos, 1ºpiso com porta direta para a rua.

No seu primeiro piso encontramos um andar moradia, de tipologia t2, com casa de banho completa e casa de banho de serviço, sala e quarto com varanda, uma marquise nas costas e um terraço.
Quanto ao piso de rés-do-chão, contamos com sala de estar, com um salão amplo uma casa de banho completa e cozinha. Salão e cozinha voltados para um pátio exterior.
A propriedade possui ainda uma garagem para dois carros, um anexo nas traseiras que lhe poderão dar diferentes servidões e ainda os fundos da cozinha que garantem um arrumo mais.
Um total de 754m2 de terreno, onde poderá fazer o seu jardim,a sua horta, ter as suas arvores de fruto ou mesmo a desejada piscina, para ajudar a propriedade possui uma água de furo.
Tudo isto localizado bem no centro da vila de Paredes de Coura, com estacionamento na zona envolvente e facilidade de acesso à serviços e comodidades.

A localização confere a esta propriedade diversas mais valias.
Poderá ser utilizada meramente como moradia unifamiliar, poderá procurar rentabilizar fazendo dois andares moradia, assim como estabelecer o seu comercio ou serviço e ter o conforto de poder habitar imediatamente por cima do local de trabalho. Poderá inclusivamente transformar em bar ou restaurante, aproveitando o terreno interior para esplanadas recatadas e servir-se do estacionamento existente no exterior. Inúmeras possibilidades que poderão ser levadas em conta.

Paredes de Coura trata-se de uma pequena vila no Norte de Portugal, distrito de Viana do Castelo. Com proximidade ás vilas de Arcos de Valdevez, Ponte de Lima, Vila Nova de Cerveira e cidade de Valença.
Distancia-se a cerca de uma hora da cidade do Porto e aeroporto Sá Carneiro, bem como a cerca de 45min do aeroporto internacional de Vigo e desta bela cidade da vizinha Espanha.
No centro do seu distrito, Paredes de Coura encontra-se a 45min do mar, ou da Serra do Gerês. A 30min da vizinha Espanha, bem como de uma grande Cidade.
A pacata vila de Paredes de Coura, oferece um ambiente muito familiar e acolhedor. Onde em cada vizinho pode ter um amigo, em cada comerciante alguém disposto a ajudar.
Um concelho rural, que aposta muito na educação e cultura. Com uma companhia de teatro, uma escola de Rock ou um centro de interpretação ambiental.
Com uma frequência regular, pode usufruir de Cinema, teatro, Saraus, tertúlias de exposições variadas ou concertos, não fosse esta a vila do rock com o famoso "Vodafone Paredes de Coura", um dos mais antigos e conceituados festivais de musica em todo o Portugal e reconhecido por todo o mundo.
Com grupos de caminhadas ou georreferenciação, montanhismo, com desporto variado desde o Judo ou capoeira, passando pelo atletismo, pela dança, natação e claro o basquetebol ou o futebol.
O local certo, para ver crescer qualquer criança, viver com qualidade de vida, poder descansar/relaxar sem perder a possibilidade de fazer aquilo que mais gostamos.
A simpatia e forma de acolher do povo Courense, leva a qualquer um, independentemente da sua origem ou/e ideologias a sentir-se em casa.
Não são estes motivos mais que suficientes para um convite a conhecer? pois venha conhecer "Coura sem Paredes" e permita-se deixar encantar...
Geral
GeraisMobilado:Sim
GeraisMurada:Sim
GeraisFuro/Poço:Sim
GeraisNº de Divisões :7
GeraisNº de Casas de Banho:2
GeraisNº de Terraços:1
GeraisNº de Marquises:1
GeraisNº de Arrecadações:3
GeraisDespensa:Sim
GeraisAnexo:Sim
GeraisAlpendre:Sim
ClimatizaçãoEsquentador:Sim
CaixilhariaMadeira:Sim
VistasCidade:Sim
VistasPanorâmicas:Sim
Exposição SolarNascente:Sim
Exposição SolarPoente:Sim
Luz NaturalIluminado:Sim
Fuga de FumosChaminé de alvenaria:Sim
GaragemIndividual:Sim
GaragemFechada Interior:Sim
CozinhaMóveis madeira:Sim
CozinhaForno:Sim
CozinhaExaustor:Sim
CozinhaFrigorífico:Sim
CozinhaEsquentador:Sim
PavimentoCerâmica:Sim

Este imóvel não tem áreas definidas.

Imóveis
Semelhantes

Moradia
Venda

206.000€

Moradia em pedra, de tipologia t3, mais sotão...

206.000€

Viana do Castelo / Paredes de Coura / Paredes de Coura e Resende


Ref: CD0042

Ref: CD0042

106 m2

3

1

Sim

Moradia
Venda

168.000€

Moradia T2 junto da vila de Paredes de Coura

168.000€

Viana do Castelo / Paredes de Coura / Paredes de Coura e Resende


Ref: CD0045

Ref: CD0045

81 m2

2

1

Moradia
Venda

178.000€

Quintinha, t3 em pedra, num total de cerca de...

178.000€

Viana do Castelo / Paredes de Coura / Agualonga


Ref: CD0024

Ref: CD0024

144 m2

3

2